Flat heat storage with heat exchangers
Flat heat storage with heat exchangers
This is equipment that accumulates excess heat from a heat-generating device (boiler, solar collectors, etc.) in the form of a hot coolant reserve and returns it to the heating system when the boiler stops working. The installation of a heat accumulator increases the operating time of the heating system on one fuel load, and the operation of a solid fuel boiler with such a device at high temperatures saves fuel, extends its service life and facilitates maintenance.
- High-quality materials - steel up to 5 mm thick, high-quality insulation;
- High quality welds;
- Compact dimensions that ensure convenient delivery and installation of equipment;
- Possibility to choose the angle of nozzles placement;
- Convenient and easy-to-clean cover;
- High working pressure;
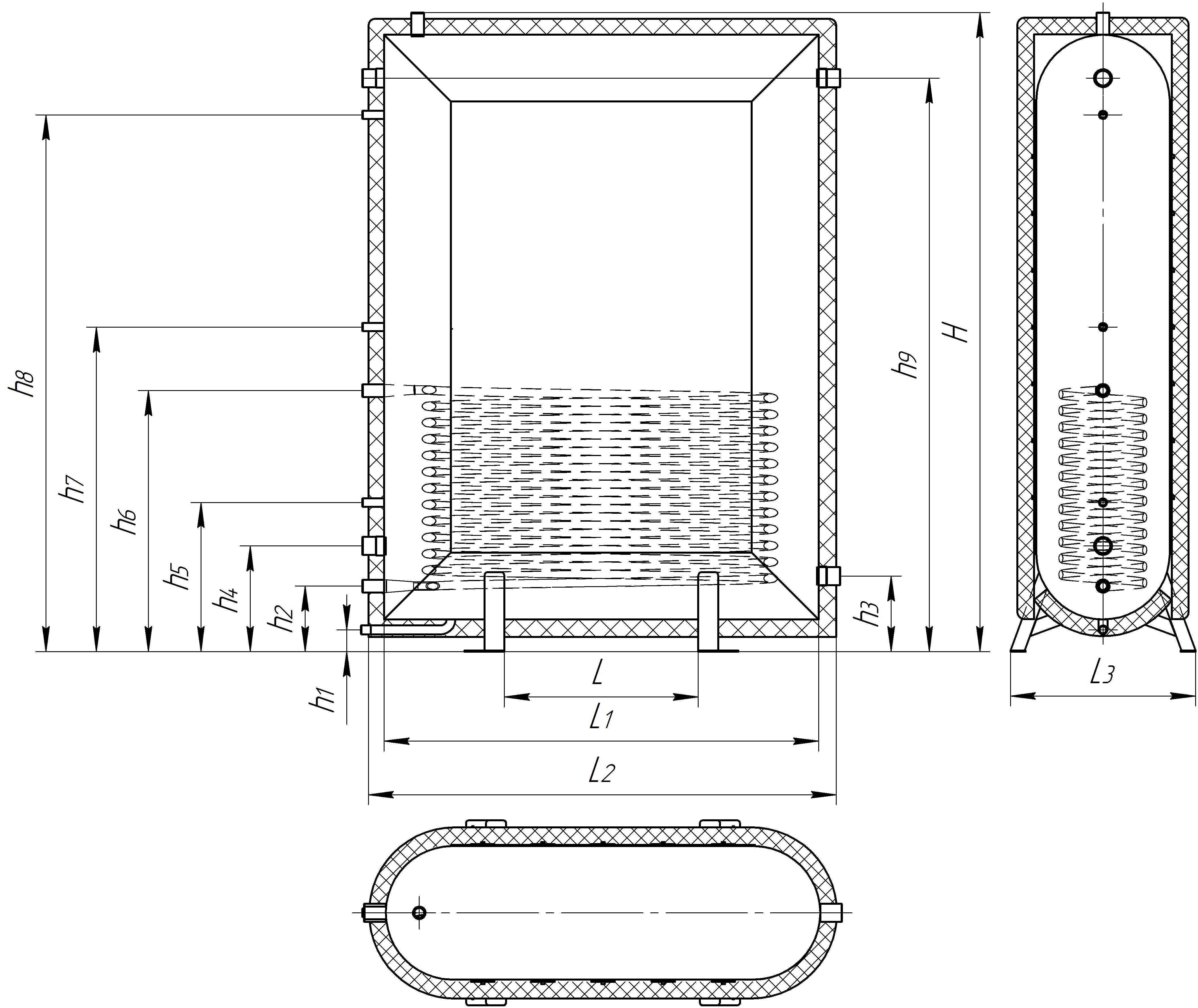
The heat accumulators are flat with an upper heat exchanger.
|
The version of the design |
Vtank, л |
Dimensions, mm |
Connecting dimensions, mm |
Weight (without water), kg |
|||||||||||
|
Н |
L |
L1 |
L2 |
h1 |
h2 |
h3 |
h4 |
h5 |
h6 |
h7 |
h8 |
h9 |
|||
|
TAP1v.500 |
480 |
1915 |
330 |
950 |
555 |
65 |
355 |
970 |
1160 |
225 |
1715 |
1525 |
1635 |
1745 |
128 |
|
1'' |
¾'' |
½'' |
½'' |
1'' |
1 ½'' |
1 ½'' |
½'' |
1 ½'' |
1'' |
||||||
|
TAP1v.800 |
780 |
1915 |
600 |
1400 |
555 |
65 |
355 |
970 |
1160 |
225 |
1715 |
1525 |
1635 |
1745 |
181 |
|
1'' |
¾'' |
½'' |
½'' |
1'' |
1 ½'' |
1 ½'' |
½'' |
1 ½'' |
1'' |
||||||
|
TAP1v.1000 |
990 |
1915 |
830 |
1750 |
555 |
65 |
355 |
970 |
1160 |
225 |
1715 |
1525 |
1635 |
1745 |
218 |
|
1'' |
¾'' |
½'' |
½'' |
1'' |
1 ½'' |
1 ½'' |
½'' |
1 ½'' |
1'' |
||||||
|
TAP1v.1500 |
1440 |
1915 |
1580 |
2500 |
555 |
65 |
355 |
970 |
1160 |
225 |
1715 |
1525 |
1635 |
1745 |
305 |
|
1'' |
¾'' |
½'' |
½'' |
1'' |
1 ½'' |
1 ½'' |
½'' |
1 ½'' |
1'' |
||||||
H is the connection pipe of the security group;
h1 - a pipe for draining the coolant;
h2, h3, h7 - temperature measurement nozzles;
h5, h6, h8 - supply and return pipes;
h4, h9 - connection pipes for the upper heat exchanger.

The heat accumulators are flat with a bottom heat exchanger.
|
The version of the design |
Vtank, л |
Dimensions, mm |
Connecting dimensions, mm |
Weight (without water), kg |
|||||||||||
|
Н |
L |
L1 |
L2 |
h1 |
h2 |
h3 |
h4 |
h5 |
h6 |
h7 |
h8 |
h9 |
|||
|
TAP1n.500 |
480 |
1915 |
330 |
950 |
555 |
65 |
225 |
355 |
465 |
810 |
1035 |
1605 |
225 |
1715 |
128 |
|
1'' |
¾'' |
1'' |
1 ½'' |
1 ½'' |
1'' |
½'' |
½'' |
1 ½'' |
1 ½'' |
||||||
|
TAP1n.800 |
780 |
1915 |
600 |
1400 |
555 |
65 |
225 |
355 |
465 |
810 |
1035 |
1605 |
225 |
1715 |
181 |
|
1'' |
¾'' |
1'' |
1 ½'' |
1 ½'' |
1'' |
½'' |
½'' |
1 ½'' |
1 ½'' |
||||||
|
TAP1n.1000 |
990 |
1915 |
830 |
1750 |
555 |
65 |
225 |
355 |
465 |
810 |
1035 |
1605 |
225 |
1715 |
218 |
|
1'' |
¾'' |
1'' |
1 ½'' |
1 ½'' |
1'' |
½'' |
½'' |
1 ½'' |
1 ½'' |
||||||
|
TAP1n.1500 |
1440 |
1915 |
1580 |
2500 |
555 |
65 |
225 |
355 |
465 |
810 |
1035 |
1605 |
225 |
1715 |
305 |
|
1'' |
¾'' |
1'' |
1 ½'' |
1 ½'' |
1'' |
½'' |
½'' |
1 ½'' |
1 ½'' |
||||||
H is the connection pipe of the security group;
h1 - a pipe for draining the coolant;
h5, h6, h8 - temperature measurement nozzles;
h3, h4, h9 - supply and return pipes;
h2, h6 - connection pipes for the lower heat exchanger.

Flat heat accumulators with two heat exchangers.
|
The version of the design |
Vtank, л |
Dimensions, mm |
Weight (without water), kg |
|||
|
Н |
L |
L1 |
L2 |
|||
|
TAP2.500 |
480 |
1915 |
330 |
950 |
555 |
138 |
|
1'' |
||||||
|
TAP2.800 |
780 |
1915 |
600 |
1400 |
555 |
191 |
|
1'' |
||||||
|
TAP2.1000 |
990 |
1915 |
830 |
1750 |
555 |
228 |
|
1'' |
||||||
|
TAP2.1500 |
1440 |
1915 |
1580 |
2500 |
555 |
315 |
H is the connection pipe of the security group;
h1 - a pipe for draining the coolant;
h5, h7, h9 - temperature measurement nozzles;
h3, h4, h10, h12 - supply and return pipes;
h2, h6 - connection pipes for the lower heat exchanger.
H8, h11 - connection pipes for the upper heat exchanger.
|
The version of the design |
Connecting dimensions, mm |
||||||||||||
|
H |
h1 |
h2 |
h3 |
h4 |
h5 |
h6 |
h7 |
h8 |
h9 |
h10 |
h11 |
h12 |
|
|
TAP2.500 |
1915 |
65 |
195 |
225 |
315 |
445 |
780 |
970 |
1160 |
1525 |
1635 |
1745 |
1715 |
|
1'' |
¾'' |
1'' |
1 ½'' |
1 ½'' |
½'' |
1'' |
½'' |
1" |
½'' |
1 ½'' |
1'' |
1 ½'' |
|
|
TAP2.800 |
1915 |
65 |
195 |
225 |
315 |
445 |
780 |
970 |
1160 |
1525 |
1635 |
1745 |
1715 |
|
1'' |
¾'' |
1'' |
1 ½'' |
1 ½'' |
½'' |
1'' |
½'' |
1" |
½'' |
1 ½'' |
1'' |
1 ½'' |
|
|
TAP2.1000 |
1915 |
65 |
195 |
225 |
315 |
445 |
780 |
970 |
1160 |
1525 |
1635 |
1745 |
1715 |
|
1'' |
¾'' |
1'' |
1 ½'' |
1 ½'' |
½'' |
1'' |
½'' |
1" |
½'' |
1 ½'' |
1'' |
1 ½'' |
|
|
TAP2.1500 |
1915 |
65 |
195 |
225 |
315 |
445 |
780 |
970 |
1160 |
1525 |
1635 |
1745 |
1715 |
|
1'' |
¾'' |
1'' |
1 ½'' |
1 ½'' |
½'' |
1'' |
½'' |
1" |
½'' |
1 ½'' |
1'' |
1 ½'' |
|

This is equipment that accumulates excess heat in the heating system and returns it to the system as needed. Heat accumulators ensure that the boiler operates at nominal modes, with the most efficient fuel combustion, and the durability of the heating system increases. Installing a heat accumulator increases the operating time of the heating system on one fuel load. This equipment balances the temperature in the heated room and protects the boiler from overheating. Heat accumulators are connected between the boiler and the heating system.
Flat heat accumulators - are flat tanks. The volume of heat accumulators:200-1500 л.
Flat heat accumulators provide for the possibility of installing a stainless steel heat exchanger (upper and lower). It is possible to place the coolant inlet and outlet pipes under0°, 180°</notranslate.
You may be interested
Круглий теплоакумулятор з теплообмінниками
- Об’єм - від 500 до 10000л;
- Теплообмінники – верхній, нижній; верхній або нижній;
- Сталь–до 5 мм;
- Теплоізоляція від 200 до 1500л. - 50 мм: водовідштовхувальна тканина Кордура.
- Теплоізоляція від 2000 до 10000л. - 100 мм: шкірозамінник і пінополіуретан.