Round heat accumulator without heat exchanger
Round heat accumulator without heat exchanger
This is equipment that accumulates excess heat from a heat-generating device (boiler, solar collectors, etc.) in the form of a hot coolant reserve and returns it to the heating system when the boiler stops working. The installation of a heat accumulator increases the operating time of the heating system on one fuel load, and the operation of a solid fuel boiler with such a device at high temperatures saves fuel, extends its service life and facilitates maintenance.
- High-quality materials - steel up to 5 mm thick, high-quality insulation;
- High quality welds;
- Possibility to choose the angle of placement of the nozzles;
- Convenient, easy-to-clean cover;
- High working pressure;
Heat accumulators without heat exchangers
|
The version of the design |
Vtank, л |
Dimensions, mm |
Connecting dimensions, mm |
Weight (without water), kg |
||||||||||
|
Н |
Ød |
ØD |
ØD1 |
h1 |
h2 |
h3 |
h4 |
h5 |
h6 |
h7 |
h8 |
|||
|
The version of the design |
Vtank, л |
Dimensions, mm |
Connecting dimensions, mm |
Weight (without water), kg |
||||||||||
|
Н |
Ød |
ØD |
ØD1 |
h1 |
h2 |
h3 |
h4 |
h5 |
h6 |
h7 |
h8 |
|||
|
TA0.200 |
200 |
1840 |
325 |
400 |
500 |
60 |
230 |
360 |
1500 |
1630 |
230 |
930 |
1630 |
78 |
|
1'' |
¾'' |
1 ½'' |
1 ½'' |
1 ½'' |
1 ½'' |
½'' |
½'' |
½'' |
||||||
|
TA0.320 |
320 |
1885 |
400 |
500 |
600 |
50 |
250 |
380 |
1520 |
1650 |
250 |
950 |
1655 |
100 |
|
1'' |
¾'' |
1 ½'' |
1 ½'' |
1 ½'' |
1 ½'' |
½'' |
½'' |
½'' |
||||||
|
TA0.500 |
480 |
1935 |
450 |
600 |
710 |
65 |
285 |
415 |
1555 |
1685 |
285 |
985 |
1685 |
124 |
|
1'' |
¾'' |
1 ½'' |
1 ½'' |
1 ½'' |
1 ½'' |
½'' |
½'' |
½'' |
||||||
|
TA0.800 |
780 |
2000 |
600 |
750 |
860 |
65 |
315 |
445 |
1585 |
1715 |
315 |
1015 |
1715 |
160 |
|
1'' |
¾'' |
1 ½'' |
1 ½'' |
1 ½'' |
1 ½'' |
½'' |
½'' |
½'' |
||||||
|
TA0.1000 |
990 |
2045 |
700 |
850 |
960 |
70 |
340 |
470 |
1610 |
1740 |
340 |
1040 |
1740 |
185 |
|
1'' |
¾'' |
1 ½'' |
1 ½'' |
1 ½'' |
1 ½'' |
½'' |
½'' |
½'' |
||||||
|
TA0.1500 |
1440 |
2125 |
850 |
1000 |
1100 |
85 |
390 |
520 |
1660 |
1790 |
390 |
1090 |
1790 |
226 |
|
1'' |
¾'' |
1 ½'' |
1 ½'' |
1 ½'' |
1 ½'' |
½'' |
½'' |
½'' |
||||||
|
TA0.2000 |
2050 |
2150 |
1000 |
1200 |
1400 |
90 |
435 |
565 |
1605 |
1735 |
435 |
1085 |
1735 |
288 |
|
1'' |
¾'' |
2'' |
2'' |
2'' |
2'' |
½'' |
½'' |
½'' |
||||||
|
TA0.3000 |
2890 |
2340 |
1150 |
1400 |
1600 |
100 |
480 |
610 |
1750 |
1880 |
480 |
1180 |
1750 |
420 |
|
1'' |
¾'' |
2'' |
2'' |
2'' |
2'' |
½'' |
½'' |
½'' |
||||||
|
TA0.4000 |
3875 |
2395 |
1300 |
1600 |
1800 |
80 |
500 |
630 |
1770 |
1900 |
500 |
1200 |
1900 |
502 |
|
1'' |
¾'' |
2'' |
2'' |
2'' |
2'' |
½'' |
½'' |
½'' |
||||||
|
TA0.5000 |
4880 |
2895 |
1300 |
1600 |
1800 |
80 |
500 |
630 |
2270 |
2400 |
500 |
1450 |
2400 |
580 |
|
1'' |
¾'' |
2'' |
2'' |
2'' |
2'' |
½'' |
½'' |
½'' |
||||||
|
TA0.6000 |
5850 |
3395 |
1300 |
1600 |
1800 |
80 |
530 |
680 |
2720 |
2870 |
530 |
1700 |
2870 |
660 |
|
1'' |
¾'' |
3'' |
3'' |
3'' |
3" |
½'' |
½'' |
½'' |
||||||
|
TA0.7000 |
6850 |
3895 |
1300 |
1600 |
1800 |
80 |
530 |
680 |
3220 |
3370 |
530 |
2000 |
3370 |
740 |
|
1'' |
¾'' |
3'' |
3'' |
3" |
3" |
½'' |
½'' |
½'' |
||||||
|
TA0.10000 |
9850 |
4015 |
1550 |
1900 |
2100 |
75 |
585 |
735 |
3275 |
3425 |
585 |
1955 |
3425 |
910 |
|
1'' |
¾'' |
3'' |
3'' |
3" |
3" |
½'' |
½'' |
½'' |
||||||
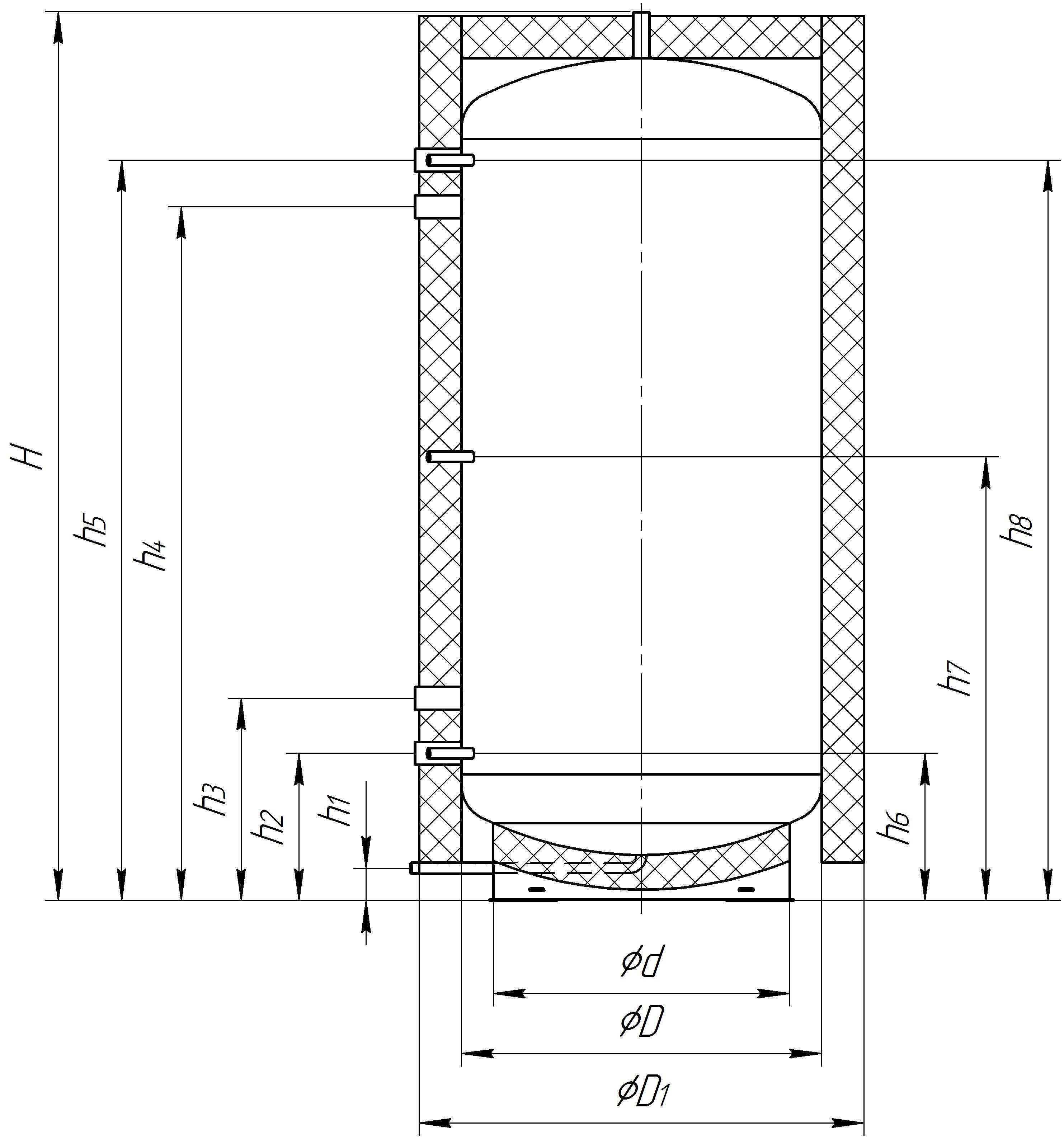
H is the connection pipe of the security group;
h1 - coolant drain pipe;
h2 - h5 - supply and return pipes;
h6 - h8 - temperature measurement nozzles.

|
The version of the design |
Vtank, л |
Dimensions, mm |
Connecting dimensions, mm |
Weight (without water), kg |
||||||||
|
Н |
Ød |
ØD |
ØD1 |
h1 |
h2 |
h3 |
h4 |
h5 |
h6 |
|||
|
The version of the design |
Vtank, л |
Dimensions, mm |
Connecting dimensions, mm |
Weight (without water), kg |
||||||||
|
Н |
Ød |
ØD |
ØD1 |
h1 |
h2 |
h3 |
h4 |
h5 |
h6 |
|||
|
TA0.200 90° and 180°</notranslate |
200 |
1840 |
325 |
400 |
600 |
230 |
1630 |
60 |
230 |
930 |
1630 |
78 |
|
1'' |
1 ½'' |
1 ½'' |
¾'' |
½'' |
½'' |
½'' |
||||||
|
TA0.320 90° and 180°</notranslate |
320 |
1885 |
400 |
500 |
700 |
250 |
1650 |
50 |
250 |
950 |
1650 |
100 |
|
1'' |
1 ½'' |
1 ½'' |
¾'' |
½'' |
½'' |
½'' |
||||||
|
TA0.500 90° and 180°</notranslate |
480 |
1940 |
450 |
600 |
800 |
285 |
1685 |
65 |
285 |
985 |
1685 |
124 |
|
1'' |
1 ½'' |
1 ½'' |
¾'' |
½'' |
½'' |
½'' |
||||||
|
TA0.800 90° and 180°</notranslate |
780 |
2000 |
600 |
750 |
950 |
315 |
1715 |
65 |
315 |
1015 |
1715 |
160 |
|
1'' |
1 ½'' |
1 ½'' |
¾'' |
½'' |
½'' |
½'' |
||||||
|
TA0.1000 90° and 180°</notranslate |
990 |
2045 |
700 |
850 |
1050 |
340 |
1740 |
70 |
340 |
1040 |
1740 |
185 |
|
1'' |
1 ½'' |
1 ½'' |
¾'' |
½'' |
½'' |
½'' |
||||||
|
TA0.1500 90° and 180°</notranslate |
1440 |
2125 |
850 |
1000 |
1200 |
390 |
1790 |
85 |
390 |
1090 |
1790 |
226 |
|
1'' |
1 ½'' |
1 ½'' |
¾'' |
½'' |
½'' |
½'' |
||||||
|
TA0.2000 90° and 180°</notranslate |
2050 |
2150 |
1000 |
1200 |
1400 |
435 |
1735 |
90 |
435 |
1085 |
1735 |
288 |
|
1'' |
2'' |
2'' |
¾'' |
½'' |
½'' |
½'' |
||||||
|
TA0.3000 90° and 180°</notranslate |
2890 |
2340 |
1150 |
1400 |
1600 |
480 |
1880 |
100 |
480 |
1180 |
1880 |
420 |
|
1'' |
2'' |
2'' |
¾'' |
½'' |
½'' |
½'' |
||||||
|
TA0.4000 90° and 180°</notranslate |
3875 |
2395 |
1300 |
1600 |
1800 |
500 |
1900 |
80 |
500 |
1200 |
1900 |
502 |
|
1'' |
2'' |
2'' |
¾'' |
½'' |
½'' |
½'' |
||||||
|
TA0.5000 90° and 180°</notranslate |
4880 |
2895 |
1300 |
1600 |
1800 |
500 |
2400 |
80 |
500 |
1450 |
2400 |
580 |
|
1'' |
2'' |
2'' |
¾'' |
½'' |
½'' |
½'' |
||||||
|
TA0.6000 90° and 180°</notranslate |
5850 |
3395 |
1300 |
1600 |
1800 |
530 |
2870 |
80 |
530 |
1700 |
2870 |
660 |
|
1'' |
3'' |
3'' |
¾'' |
½'' |
½'' |
½'' |
||||||
|
TA0.7000 90° and 180° |
6850 |
3895 |
1300 |
1600 |
1800 |
530 |
3370 |
80 |
530 |
2000 |
3370 |
740 |
|
1'' |
3'' |
3'' |
¾'' |
½'' |
½'' |
½'' |
||||||
|
TA0.10000 90° and 180°</notranslate |
9850 |
4015 |
1550 |
1900 |
2100 |
585 |
3425 |
75 |
585 |
1955 |
3425 |
910 |
|
1'' |
3'' |
3'' |
¾'' |
½'' |
½'' |
½'' |
||||||
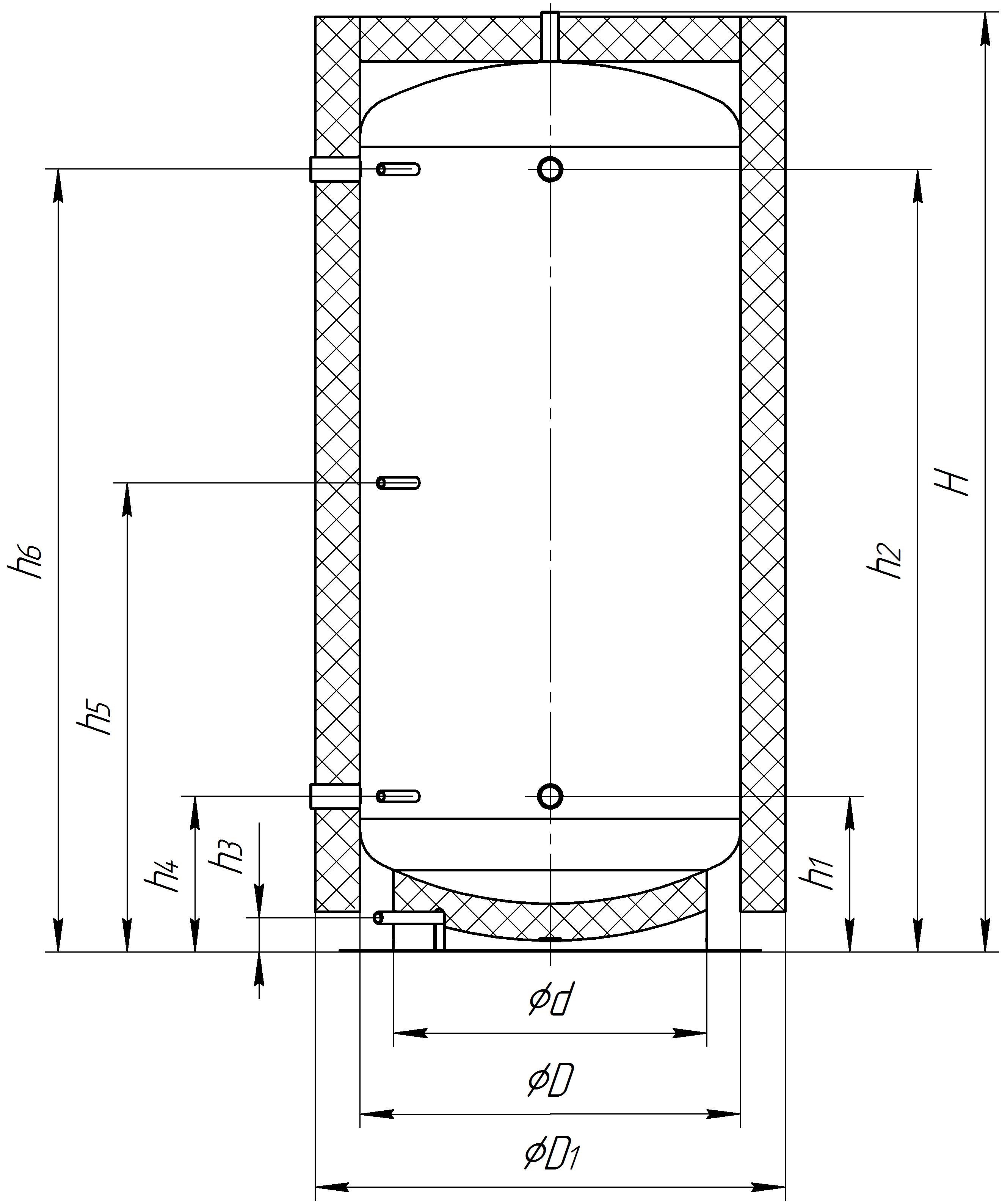
H is the connection pipe of the security group;
h1, h2 - supply and return pipes;
h3 - a pipe for draining the coolant;
h4 - h6 - temperature measurement nozzles.


This is equipment that accumulates excess heat in the heating system and returns it to the system as needed. Heat accumulators ensure that the boiler operates at rated conditions, with the most efficient fuel combustion, and increases the durability of the heating system. The installation of a heat accumulator increases the operating time of the heating system on a single fuel load. This equipment balances the temperature in the heated room and protects the boiler from overheating. Heat accumulators are connected between the boiler and the heating system.
Round heat accumulators - are cylindrical tanks. The company produces heat accumulatorswith a volume of 200-10000 liters.
Round heat accumulators provide for the possibility of installing a heat exchanger (upper and lower) made of stainless or black steel.0°, 90°, 180°.
You may be interested
Круглий теплоакумулятор з теплообмінниками
- Об’єм - від 500 до 10000л;
- Теплообмінники – верхній, нижній; верхній або нижній;
- Сталь–до 5 мм;
- Теплоізоляція від 200 до 1500л. - 50 мм: водовідштовхувальна тканина Кордура.
- Теплоізоляція від 2000 до 10000л. - 100 мм: шкірозамінник і пінополіуретан.