Industrial solid fuel boiler DUO Pellet
Industrial solid fuel boiler DUO Pellet
Reliable boilers with automatic dosed fuel supply, capable of operating on fractional fuel (pellets, coal, etc.). They are equipped with a European-made retort burner. The boiler can be easily switched to manual fuel loading mode. Safe operation is ensured by a boiler control unit and a non-volatile fire extinguishing system.
The boilers are available in two versions:
- DUO Pellet - adapted for installation of cast iron grate
- DUO Pellet N - with water grate
- The boiler material is high-quality steel, 6 mm thick;
- Automatic fuel supply;
- Self-cleaning function of the burner;
- Insulated doors with double insulation for safe operation and minimization of heat loss;
- Unpretentious to fuel;
- Easy to maintain;
| Parameter. | Unit. | Norm for the DUO Pellet boiler (KT-2ESH) | ||||
| Rated power of the boiler | kW | 95 | 120 | 150 | 200 | 250 |
| Heat exchanger area | м2 | 7,8 | 9,8 | 11,3 | 15,1 | 18,9 |
| Efficiency, not less than | %</notranslate | 91 | 91 | 91 | 91 | 91 |
| Fuel tank capacity | dm3 | 620 | 620 | 620 | 840 | 1050 |
| Water capacity of the boiler | л | 398 | 473 | 580 | 773 | 966 |
| Weight of the boiler without water | kg | 1170 | 1310 | 1450 | 1790 | 2200 |
| Fuel gas temperature | °C | 100-180 | 100-180 | 100-180 | 100-180 | 100-180 |
| Recommended minimum water temperature | °C | 58 | 58 | 58 | 58 | 58 |
| Maximum water temperature | °C | 85 | 85 | 85 | 85 | 85 |
| Nominal operating water pressure | MPa | 0,20 | 0,20 | 0,20 | 0,20 | 0,20 |
| Electricity consumption, no more than | W | 430 | 430 | 430 | 500 | 500 |
| Connecting (external) dimensions of the hog | mm | 299 | 299 | 299 | 348 | 398 |
| Diameter of mains water connections (DN) | mm | 65(FL) | 80(FL) | 80(FL) | 100(FL) | 100(FL) |
| Recommended chimney parameters | ||||||
| cross-sectional area | cm2 | 702 | 702 | 702 | 962 | 1256 |
| inner diameter | mm | 300 | 300 | 300 | 350 | 400 |
| height (minimum allowable) | м | 8 | 9 | 10 | 11 | 11 |
| Maximum fan performance | m3/h | 600 | 600 | 600 | 600 | 600 |
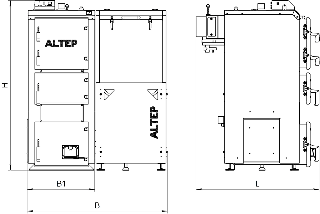
Overall dimensions of the Duo Pellet boiler (KT-2ESH)

| Parameter | Unit of measurement | Norm for Duo Pellet (KT-2ESH) | ||||
| Overall dimensions | mm | 95 | 120 | 150 | 200 | 250 |
| B | mm | 1780 | 1950 | 1950 | 2430 | 2430 |
| B1 | mm | 830 | 1010 | 1010 | 1290 | 1290 |
| H | mm | 2190 | 2190 | 2190 | 2360 | 2360 |
| L | mm | 1540 | 1640 | 1780 | 1940 | 2240 |
Solid fuel boilers of the typeDUO Pellet - reliable boilers with automatic fuel supply. These are long-burning boilers designed to heat rooms in automatic mode. Power range:95-250 kW.
The fuel for the boiler is automatically supplied to the retort burner by means of a screw feeder from the fuel tank located next to the boiler. The hopper can be placed on the left or right side. The boiler is equipped with a deflector, which ensures uniform heat distribution over the entire area of the heat exchanger, extending the operating period of the boiler.
To switch the boiler to the manual mode of fuel loading, it is necessary to install a cast iron grate.
Using the control panel, the user can adjust the fuel and air supply modes for high-quality and efficient fuel combustion. The fuel supply mechanism is equipped with an emergency fire extinguishing system.